Choose your country to see local content
IT Dils Italy NL Dils Nederlands PT_PT Dils Portugal ES Dils Spain ES Dils Lucas Fox FR Eol - A Dils Company
Visit
Dils
Dils Dils
  • Settori
    UfficiLogistica e IndustrialeRetailHospitalityLiving e Residenziale
  • Servizi
    UtilizzatoriProprietariInvestitori
  • Immobili
    UfficiLogistica e IndustrialeRetailLiving e ResidenzialeGuida ai quartieri di Milano
  • News
  • Chi siamo
    Questi siamo noiIl Manifesto DilsInternationalIl Dils ClubRebrandingLavora con noi
  • Innovation
  • Dils Cares
    Give BackThis is my MilanoPorta RomanaLambrateIsolaMaggiolinaTicineseScalo di Porta RomanaNews
  • Contatti
0
Language
EN Inglese IT Italiano
International
IT Dils Italy NL Dils Nederlands PT_PT Dils Portugal ES Dils Spain ES Dils Lucas Fox FR Eol - A Dils Company
  • IT
    EN IT
|
Dils Italy IT Dils Nederlands NL Dils Portugal PT_PT Dils Spain ES Dils Lucas Fox ES Eol - A Dils Company FR
Redilco Sigest Redilco Sigest
Redilco Sigest
Trova il tuo immobile

Perrone di San Martino 12

Maggiolina
Milano, Via E. Perrone di San Martino, 12

Chiamaci

02673631

Scrivici

living@dils.com

Per maggiori informazioni, compila il form e ti contatteremo noi.

    Leggi l'informativa sull'utilizzo di agenti virtuali.

    Riceverai una telefonata gratuita dal numero verde: 800 931 408. Per una migliore esperienza, consigliamo di rispondere in un ambiente silenzioso, senza rumori di fondo e di non usare il vivavoce. La chiamata sarà registrata e archiviata per un massimo di 15 giorni, e i relativi dati saranno trattati esclusivamente per supportarla nella sua ricerca immobiliare e monitorare la qualità del servizio, in conformità all'informativa privacy che può trovare sul nostro sito web nella sezione "Privacy".

    living - Perrone di San Martino 12 - Living - Dils - gallery - 1
    living - Perrone di San Martino 12 - Living - Dils - gallery - 2
    living - Perrone di San Martino 12 - Living - Dils - gallery - 3
    living - Perrone di San Martino 12 - Living - Dils - gallery - 4
    living - Perrone di San Martino 12 - Living - Dils - gallery - 5
    living - Perrone di San Martino 12 - Living - Dils - gallery - 6
    living - Perrone di San Martino 12 - Living - Dils - gallery - 7
    living - Perrone di San Martino 12 - Living - Dils - gallery - 8
    living - Perrone di San Martino 12 - Living - Dils - gallery - 9
    living - Perrone di San Martino 12 - Living - Dils - gallery - 10
    living - Perrone di San Martino 12 - Living - Dils - gallery - 11
    living - Perrone di San Martino 12 - Living - Dils - gallery - 12
    living - Perrone di San Martino 12 - Living - Dils - gallery - 13
    living - Perrone di San Martino 12 - Living - Dils - gallery - 14
    living - Perrone di San Martino 12 - Living - Dils - gallery - 15
    living - Perrone di San Martino 12 - Living - Dils - Planimetria - 1
    living - Perrone di San Martino 12 - Living - Dils - Planimetria - 2
    living - Perrone di San Martino 12 - Living - Dils - Planimetria - 3
    living - Perrone di San Martino 12 - Living - Dils - Planimetria - 4
    1 / 19
    Planim. Mappa
    living - Perrone di San Martino 12 - Living - Dils - gallery thumbnail - 1
    living - Perrone di San Martino 12 - Living - Dils - gallery thumbnail - 2
    living - Perrone di San Martino 12 - Living - Dils - gallery thumbnail - 3
    living - Perrone di San Martino 12 - Living - Dils - gallery thumbnail - 4
    living - Perrone di San Martino 12 - Living - Dils - gallery thumbnail - 5
    living - Perrone di San Martino 12 - Living - Dils - gallery thumbnail - 6
    living - Perrone di San Martino 12 - Living - Dils - gallery thumbnail - 7
    living - Perrone di San Martino 12 - Living - Dils - gallery thumbnail - 8
    living - Perrone di San Martino 12 - Living - Dils - gallery thumbnail - 9
    living - Perrone di San Martino 12 - Living - Dils - gallery thumbnail - 10
    living - Perrone di San Martino 12 - Living - Dils - gallery thumbnail - 11
    living - Perrone di San Martino 12 - Living - Dils - gallery thumbnail - 12
    living - Perrone di San Martino 12 - Living - Dils - gallery thumbnail - 13
    living - Perrone di San Martino 12 - Living - Dils - gallery thumbnail - 14
    living - Perrone di San Martino 12 - Living - Dils - gallery thumbnail - 15
    living - Perrone di San Martino 12 - Living - Dils - Planimetria thumbnail - 1
    living - Perrone di San Martino 12 - Living - Dils - Planimetria thumbnail - 2
    living - Perrone di San Martino 12 - Living - Dils - Planimetria thumbnail - 3
    living - Perrone di San Martino 12 - Living - Dils - Planimetria thumbnail - 4

    Dettagli immobile

    Codice
    TMI-427-PER-PT-703
    Tipo
    Living
    Contratto
    Vendita
    Zona
    Maggiolina, Istria
    Quartiere
    Maggiolina, Istria
    Prezzo
    3.150.000 €
    Disponibilità
    Immediata
    Superficie
    355 m²
    Taglio
    Plurilocale
    Classe energetica
    A4

    Nell’elegante quartiere residenziale Maggiolina di Milano, in una delle vie più richieste ed esclusive, proponiamo una villa urbana di recente realizzazione, in Classe A4.

    La proprietà, caratterizzata da un’architettura contemporanea, si sviluppa su tre livelli fuori terra oltre a un piano giardino, tutti collegati da ascensore interno e completati da un riservato giardino privato sul retro dell’abitazione, con affaccio a sud, che garantisce privacy, tranquillità e una splendida luminosità naturale per tutto l’arco della giornata. Completano la proprietà due posti auto, uno coperto e uno scoperto, provvisto di colonnina per la ricarica elettrica.

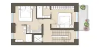
    Al piano rialzato l’ingresso introduce alla luminosa zona living: un ampio ambiente con triplo affaccio sul verde circostante, ideale per ospitare una confortevole zona conversazione e pranzo. A fianco del living sono previsti una cucina abitabile separata, uno studio o sala da pranzo più formale e un bagno, ideale per la ricezione degli ospiti.

    Il piano primo ospita la prima zona notte, composta da due camere matrimoniali, entrambe dotate di bagno en suite; una delle camere dispone di cabina armadio, mentre l’altra gode di un balcone con affaccio sul giardino privato.

    Al secondo piano si trova una master bedroom con ampia cabina armadio e bagno dedicato, pensata come una suite.

    Il piano più basso accoglie una taverna completamente rifinita e fruibile, accessibile anche dall’esterno, con zona gioco o hobby, cucina di servizio, locale lavanderia e stireria.

    La villa è dotata di fibra ottica, impianto di allarme, sistema di domotica, riscaldamento a pavimento, climatizzazione canalizzata e pannelli fotovoltaici, garantendo elevati standard abitativi e di comfort.

    Le finiture, indubbiamente di pregio, lasciano ancora spazio a una personalizzazione, con possibilità di intervenire sulla scelta dei materiali dei bagni e di ulteriori dettagli, all’interno di un capitolato di primario standing.

    Soluzione di alto profilo, ideale per chi ricerca indipendenza, qualità costruttiva e tecnologie avanzate in uno dei quartieri residenziali più tranquilli e affascinanti di Milano.

    Tags: Nuova costruzione
    Altre informazioni
    Tipologia Villa urbana
    Camere 4
    Bagni 5
    Piano Piano terra (4 livelli)
    Stato manutentivo Nuova costruzione
    Posti auto Si
    Balconi - Terrazzi Si
    Esposizione Tripla
    Orientamento zona giorno Sud
    Fibra ottica Si
    Impianto di allarme Si
    Porta blindata Si
    Riscaldamento Autonomo
    Giardino privato Si
    Terrazza Si
    Taverna Si
    Stazioni ricarica auto elettriche Si
    Collegamenti
    Metro M3, M5 - Marche - 12' A piedi
    Bus/Tram Bus 42, 43, 81 / Tram 31, 5, 7 - 4' A piedi
    Ferrovie Milano Centrale - 25' A piedi
    Mappa
    Il quartiere: Maggiolina, Istria - Milano
    Maggiolina, Istria
    Visita il quartiere

    Immobili simili

    living - Ressi 16 - Living - Dils - featured
    Vendita
    TMI-466-RES-P06-019

    Ressi 16

    Maggiolina, Istria
    Milano, Via Adeodato Ressi, 16, 20125 Milano MI, Italy
    Vai alla scheda
    living - Vergani 13_unità 0.3 - Living - Dils - featured
    Vendita
    TWN-988-TS - 5494 - 0.3_riv

    Vergani 13_unità 0.3

    Maggiolina, Istria
    Milano, Via Privata Orio Vergani, 13
    Vai alla scheda
    living - Vergani 13 - unità 0.2 - Living - Dils - featured
    Vendita
    TWN-988-TS - 5494 - 0.2_vendita

    Vergani 13 - unità 0.2

    Maggiolina, Istria
    Milano, Via Privata Orio Vergani, 13
    Vai alla scheda
    living - Via Vergani n. 19 - Living - Dils - featured
    Vendita
    TWN-988-TS - 5496 - int. A

    Vergani 19

    U1 - Maggiolina
    Milano, Via Privata Orio Vergani, 19
    Vai alla scheda
    living - Vergani 21 - Living - Dils - featured
    Vendita
    TWN-988-TS - 5497 - 3.1_riv

    Vergani 21

    Unità 3.1_riv Maggiolina, Istria
    Milano, Via Privata Orio Vergani, 21
    Vai alla scheda
    living - 46 Gluck - Living - Dils - featured
    Vendita
    GLK-632

    46 Gluck

    Maggiolina
    Milano, Via Cristoforo Gluck, 46
    Vai alla scheda
    living - Gluck 44 - Living - Dils - featured
    Vendita
    TMI-458-GLU-P02-705

    Gluck 44

    Maggiolina, Istria
    Milano, Via Cristoforo Gluck, 44
    Vai alla scheda
    living - Belinzaghi 14 - Living - Dils - featured
    Vendita
    TMI-305-BEL-PT-05

    Belinzaghi 14

    Isola
    Milano, Via Giulio Belinzaghi, 14
    Vai alla scheda
    living - Flair Living - Living - Dils - featured
    Vendita
    FLR-614

    Flair Living

    Scalo Farini
    Milano, Viale Edoardo Jenner, 20
    Vai alla scheda
    living - PALAZZO ADDA - Living - Dils - featured
    Vendita
    DDA-856

    PALAZZO ADDA

    Garibaldi, Moscova, Porta Nuova
    Milano, Via Adda, 11
    Vai alla scheda
    living - Bordoni 6 - Living - Dils - featured
    Vendita
    BRD-352

    Bordoni 6

    Garibaldi, Moscova, Porta Nuova
    Milano, Via Antonio Bordoni, 6
    Vai alla scheda
    living - Catalani 63 - Living - Dils - featured
    Vendita
    TMI-393-CAT-P02-703

    Catalani 63

    Città Studi
    Milano, Via Alfredo Catalani, 63
    Vai alla scheda
    living - Corso Como 6 - Living - Dils - featured
    Vendita
    TMI-420-COM-P02-705

    Corso Como 6

    Garibaldi, Moscova, Porta Nuova
    Milano, Corso Como, 6
    Vai alla scheda
    living - #GarofaloPaisiello - Living - Dils - featured
    Vendita
    GRP-271-A31_vendita

    Garofalo 37_A31

    Città Studi, Susa
    Milano, Via Garofalo 37
    Vai alla scheda
    living - Garofalo 37 - Living - Dils - featured
    Vendita
    GRP-271-C22_rivendita

    Garofalo 37

    Città Studi
    Milano, Via Garofalo 37
    Vai alla scheda

    Immobili consigliati

    living - Cicognara 7 - Living - Dils - featured
    Vendita
    CCG-221

    Dateo Court

    Dateo
    Milano, Via Leopoldo Cicognara, 7
    Vai alla scheda
    living - Bordoni 6 - Living - Dils - featured
    Vendita
    BRD-352

    Bordoni 6

    Garibaldi, Moscova, Porta Nuova
    Milano, Via Antonio Bordoni, 6
    Vai alla scheda
    living - Palazzo Aurea - Living - Dils - featured
    Vendita
    PLZ-886

    Palazzo Aurea

    Porta Romana, Cadore, Montenero
    Milano, P.le Medaglie D'Oro, 3
    Vai alla scheda
    living - Navigli Towers - Living - Dils - featured
    Vendita
    RCH-742

    Navigli Towers

    Navigli
    Milano, Viale Giulio Richard, 5
    Vai alla scheda
    living - Tortona-Living Milano - Living - Dils - featured
    Vendita
    TRT-813

    Tortona Living

    De Amicis, Ticinese, Tortona
    Milano, Via Tortona, 37
    Vai alla scheda
    living - Pestalozzi 21 - Living - Dils - featured
    Vendita
    PST-588

    Pestalozzi 21

    Navigli
    Milano, Via Giovanni Enrico Pestalozzi, 21
    Vai alla scheda
    living - Bazzi 51 - Living - Dils - featured
    Vendita
    BZZ-574

    Bazzi 51

    Scalo di Porta Romana
    Milano, Via Carlo Bazzi, 51
    Vai alla scheda
    living - Nizzoli 8 - Living - Dils - featured
    Vendita
    NZZ-642

    Nizzoli 8

    Bande Nere
    Milano, Via Marcello Nizzoli, 8
    Vai alla scheda
    living - Flair Living - Living - Dils - featured
    Vendita
    FLR-614

    Flair Living

    Scalo Farini
    Milano, Viale Edoardo Jenner, 20
    Vai alla scheda
    living - Castel Morrone - Living - Dils - featured
    Vendita
    CST-398

    Castel Morrone

    Porta Venezia, Indipendenza
    Milano, Via Castel Morrone, 5
    Vai alla scheda
    living - Vista Living - Living - Dils - featured
    Vendita
    VST-872

    Vista Living

    De Amicis, Conca del Naviglio
    Milano, Via Conca del Naviglio, 20
    Vai alla scheda
    living - Melzi d'Eril - Living - Dils - featured
    Vendita
    CSR-616

    Melzi d'Eril

    Arco della Pace, Arena, Pagano
    Milano, Via Cesare Cesariano, 18
    Vai alla scheda
    living - Monte Nero 58 - Living - Dils - featured
    Vendita
    MNT-734

    Monte Nero 58

    Porta Romana, Cadore, Montenero
    Milano, Viale Monte Nero, 58
    Vai alla scheda
    living - The Magenta - Living - Dils - featured
    Vendita
    THM-604

    The Magenta

    Corso Magenta
    Milano, Corso Magenta, 55
    Vai alla scheda
    living - LivinUp - Living - Dils - featured
    Locazione
    LVN-655

    LivinUp

    Bisceglie
    Milano, Via dei Calchi Taeggi
    Vai alla scheda
    living - Armance - Living - Dils - featured
    Vendita
    RMN-604

    Armance

    Solari, Washington
    Milano, Via Trezzo d'Adda, 14
    Vai alla scheda
    living - Palazzo Ada - Living - Dils - featured
    Vendita
    PLZ-576

    Palazzo Ada

    Trieste, Salario
    Roma, Via di Tor Fiorenza, 35
    Vai alla scheda
    living - G30 Town House - Living - Dils - featured
    Vendita
    GVN-708

    G30

    Cenisio, Sarpi, Isola
    Milano, Via Giuseppe Govone, 30
    Vai alla scheda
    living - Via Monte Prato Magno - Living - Dils - featured
    Vendita
    PML-847

    7PM Living

    Precotto, Turro
    Milano, Via Privata Monte Prato Magno, 9, 20128 Milano MI, Italy
    Vai alla scheda
    living - Rismondo 110 Living Dils - Living - Dils - featured
    Vendita
    RSM-886

    Rismondo 110

    Bisceglie
    Milano, Via Francesco Rismondo, 110
    Vai alla scheda
    living - Crespi16- Living - Dils - featured
    Vendita
    CRS-542

    CRESPI 16

    Navigli
    Milano, Via Daniele Crespi, 16
    Vai alla scheda
    living - PALAZZO ADDA - Living - Dils - featured
    Vendita
    DDA-856

    PALAZZO ADDA

    Garibaldi, Moscova, Porta Nuova
    Milano, Via Adda, 11
    Vai alla scheda
    living - D Five - Living - Dils - featured
    Vendita
    DFV-975

    D Five

    Centro
    Milano, Via degli Arcimboldi, 5
    Vai alla scheda
    living - Floria - Living - Dils - featured
    Vendita
    FLR-153

    Floria

    Aurelio, Boccea
    Roma, Via della Stazione Aurelia, 99
    Vai alla scheda
    living - Versus Milano - Living - Dils - featured
    Vendita
    VRS-216

    Versus Milano

    Scalo di Porta Romana, Ripamonti, Vigentino
    Milano, Via Bernardino Verro, 62
    Vai alla scheda
    living - Vivarini 5 - Living - Dils - featured
    Vendita
    VVR-724

    Vivarini 5

    Scalo di Porta Romana
    Milano, Via Privata Vivarini, 5
    Vai alla scheda
    living - Frua 21 - Living - Dils - featured
    Vendita
    FRU-982

    Frua 21/10

    Solari, Washington
    Milano, Via Giuseppe Frua, 2110
    Vai alla scheda
    living - Villa Astaldi - Living - Dils - featured
    Vendita
    TRM-45-Villa Astaldi_508

    Villa Astaldi

    Parioli
    Roma, Via Saverio Mercadante, 28, 00198 Roma RM, Italy
    Vai alla scheda
    living - Murillo 42 - Living - Dils - featured
    Vendita
    MRL-342

    Murillo 42

    Fiera, Sempione, Citylife,
    Milano, Viale Murillo, 42
    Vai alla scheda
    living - Adamello10 - Living - Dils - featured
    Vendita
    ADM-252

    Adamello 10

    Scalo di Porta Romana
    Milano, Via Adamello, 10
    Vai alla scheda
    living - Piazzetta Living - Living - Dils - featured
    Vendita
    PZZ-621

    Piazzetta Living

    Scalo di Porta Romana
    Milano, Via Giovanni Battista Piazzetta, 25, 20139 Milano MI, Italy
    Vai alla scheda
    living - Goldoni 44 - Living - Dils - featured
    Vendita
    TRM-20-LU.P2.R1_740

    Goldoni 44

    Centro Storico
    Roma, Largo Carlo Goldoni, 44
    Vai alla scheda
    living - Della Quercia - Living - Dils - featured
    Vendita
    DLL-996

    Della Quercia

    Fiera, Sempione, Citylife, Portello
    Milano, Via Jacopo della Quercia, 29
    Vai alla scheda
    living - Virage - Living - Dils - featured
    Vendita
    VRG-826

    Virage

    Porta Romana, Cadore, Montenero
    Milano, Via Giorgio Vasari, 19
    Vai alla scheda
    living - Milano 3.0 - Living - Dils - featured
    Vendita
    M30-340

    Milano 3.0

    Basiglio, Via Francesco Sforza, 1
    Vai alla scheda
    living - Portofino - Living - Dils - featured
    Vendita
    TGE-5-POR-893

    Portofino

    Riviera Ligure
    Portofino, GE
    Vai alla scheda
    living - Principale 109 - Living - Dils - featured
    Vendita
    TMB-1-COR-VIL-701

    Principale 109

    Correzzana
    Correzzana, Via Principale, 109
    Vai alla scheda
    living - Watt 9 - Living - Dils - featured
    Vendita
    TMI-235-WAT-VIL-701

    Watt 9

    Navigli
    Milano, Via Giacomo Watt, 9
    Vai alla scheda
    living - Le Géant - Living - Dils - featured
    Vendita
    LGN-872

    Le Géant

    Courmayeur, SR, 76
    Vai alla scheda
    living - Gobetti Garden - Living - Dils - featured
    Vendita
    GBT-814

    Gobetti Garden

    Udine, Lambrate
    Milano, Via Monte Nevoso, 2
    Vai alla scheda
    living - merate - Living - Dils - featured
    Vendita
    VLL-516

    Ville Vedù

    Merate
    Merate, Via Salvador Allende
    Vai alla scheda
    living - Ca' Village - Living - Dils - featured
    Locazione
    CVG-355

    Ca' Village

    Cascina Merlata
    Milano, Via Pier Paolo Pasolini, 1
    Vai alla scheda
    living - The Grid - Living - Dils - featured
    Vendita
    THG-972-Attico

    The Grid

    Fiera, Sempione, Citylife, Portello
    Milano, Viale Paolo Onorato Vigliani, 51
    Vai alla scheda

    Perrone di San Martino 12

    Maggiolina - Milano, Via E. Perrone di San Martino, 12

    living - Perrone di San Martino 12 - Living - Dils - gallery thumbnail - 1
    living - Perrone di San Martino 12 - Living - Dils - gallery thumbnail - 2
    living - Perrone di San Martino 12 - Living - Dils - gallery thumbnail - 3
    living - Perrone di San Martino 12 - Living - Dils - gallery thumbnail - 4
    living - Perrone di San Martino 12 - Living - Dils - gallery thumbnail - 5
    living - Perrone di San Martino 12 - Living - Dils - gallery thumbnail - 6
    living - Perrone di San Martino 12 - Living - Dils - gallery thumbnail - 7
    living - Perrone di San Martino 12 - Living - Dils - gallery thumbnail - 8
    living - Perrone di San Martino 12 - Living - Dils - gallery thumbnail - 9
    living - Perrone di San Martino 12 - Living - Dils - gallery thumbnail - 10
    living - Perrone di San Martino 12 - Living - Dils - gallery thumbnail - 11
    living - Perrone di San Martino 12 - Living - Dils - gallery thumbnail - 12
    living - Perrone di San Martino 12 - Living - Dils - gallery thumbnail - 13
    living - Perrone di San Martino 12 - Living - Dils - gallery thumbnail - 14
    living - Perrone di San Martino 12 - Living - Dils - gallery thumbnail - 15
    living - Perrone di San Martino 12 - Living - Dils - gallery - 1
    living - Perrone di San Martino 12 - Living - Dils - gallery - 2
    living - Perrone di San Martino 12 - Living - Dils - gallery - 3
    living - Perrone di San Martino 12 - Living - Dils - gallery - 4
    living - Perrone di San Martino 12 - Living - Dils - gallery - 5
    living - Perrone di San Martino 12 - Living - Dils - gallery - 6
    living - Perrone di San Martino 12 - Living - Dils - gallery - 7
    living - Perrone di San Martino 12 - Living - Dils - gallery - 8
    living - Perrone di San Martino 12 - Living - Dils - gallery - 9
    living - Perrone di San Martino 12 - Living - Dils - gallery - 10
    living - Perrone di San Martino 12 - Living - Dils - gallery - 11
    living - Perrone di San Martino 12 - Living - Dils - gallery - 12
    living - Perrone di San Martino 12 - Living - Dils - gallery - 13
    living - Perrone di San Martino 12 - Living - Dils - gallery - 14
    living - Perrone di San Martino 12 - Living - Dils - gallery - 15
    living - Perrone di San Martino 12 - Living - Dils - Planimetria thumbnail - 1
    living - Perrone di San Martino 12 - Living - Dils - Planimetria thumbnail - 2
    living - Perrone di San Martino 12 - Living - Dils - Planimetria thumbnail - 3
    living - Perrone di San Martino 12 - Living - Dils - Planimetria thumbnail - 4
    living - Perrone di San Martino 12 - Living - Dils - Planimetria - 1
    living - Perrone di San Martino 12 - Living - Dils - Planimetria - 2
    living - Perrone di San Martino 12 - Living - Dils - Planimetria - 3
    living - Perrone di San Martino 12 - Living - Dils - Planimetria - 4
    Dils
    Settori
    • Uffici
    • Logistica e Industriale
    • Retail
    • Hospitality
    • Living e Residenziale
    Servizi
    • Utilizzatori
    • Proprietari
    • Investitori
    Immobili
    • Uffici
    • Logistica e Industriale
    • Retail
    • Living e Residenziale
    • Guida ai quartieri di Milano
    Chi siamo
    • Questi siamo noi
    • Il Manifesto Dils
    • Il Dils Club
    • News e Ricerche
    • Give Back
    • This is my Milano
    • Lavora con noi
    • Contatti
    Seguici
    Dils Copyright © 2026 P.IVA 07575790154 - Privacy | Cookies | Cookie Preferences | Organismo di Vigilanza | Whistleblowing | Accessibility