Choose your country to see local content
IT Dils Italy NL Dils Nederlands PT_PT Dils Portugal ES Dils Spain ES Dils Lucas Fox FR Eol - A Dils Company
Visit
Dils
Dils Dils
  • Settori
    UfficiLogistica e IndustrialeRetailHospitalityLiving e Residenziale
  • Servizi
    UtilizzatoriProprietariInvestitori
  • Immobili
    UfficiLogistica e IndustrialeRetailLiving e ResidenzialeGuida ai quartieri di Milano
  • News
  • Chi siamo
    Questi siamo noiIl Manifesto DilsInternationalIl Dils ClubRebrandingLavora con noi
  • Innovation
  • Dils Cares
    Give BackThis is my MilanoPorta RomanaLambrateIsolaMaggiolinaTicineseScalo di Porta RomanaNews
  • Contatti
0
Language
EN Inglese IT Italiano
International
IT Dils Italy NL Dils Nederlands PT_PT Dils Portugal ES Dils Spain ES Dils Lucas Fox FR Eol - A Dils Company
  • IT
    EN IT
|
Dils Italy IT Dils Nederlands NL Dils Portugal PT_PT Dils Spain ES Dils Lucas Fox ES Eol - A Dils Company FR
Redilco Sigest Redilco Sigest
Redilco Sigest
Trova il tuo immobile

Ribotta 11

Roma, Viale Giorgio Ribotta, 9

Chiamaci

+39 06 420 138 77

Scrivici

roma@dils.com

Per maggiori informazioni, compila il form e ti contatteremo noi.

    Leggi l'informativa sull'utilizzo di agenti virtuali.

    Riceverai una telefonata gratuita dal numero verde: 800 931 408. Per una migliore esperienza, consigliamo di rispondere in un ambiente silenzioso, senza rumori di fondo e di non usare il vivavoce. La chiamata sarà registrata e archiviata per un massimo di 15 giorni, e i relativi dati saranno trattati esclusivamente per supportarla nella sua ricerca immobiliare e monitorare la qualità del servizio, in conformità all'informativa privacy che può trovare sul nostro sito web nella sezione "Privacy".

    office - Ribotta 11 - Uffici - Dils - gallery - 1
    office - Ribotta 11 - Uffici - Dils - gallery - 2
    office - Ribotta 11 - Uffici - Dils - gallery - 3
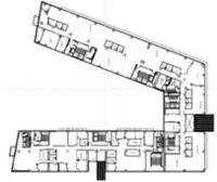
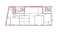
    office - Ribotta 11 - Uffici - Dils - Planimetria - 1
    office - Ribotta 11 - Uffici - Dils - Planimetria - 2
    office - Ribotta 11 - Uffici - Dils - Planimetria - 3
    1 / 6
    Planim. Mappa
    office - Ribotta 11 - Uffici - Dils - gallery thumbnail - 1
    office - Ribotta 11 - Uffici - Dils - gallery thumbnail - 2
    office - Ribotta 11 - Uffici - Dils - gallery thumbnail - 3
    office - Ribotta 11 - Uffici - Dils - Planimetria thumbnail - 1
    office - Ribotta 11 - Uffici - Dils - Planimetria thumbnail - 2
    office - Ribotta 11 - Uffici - Dils - Planimetria thumbnail - 3

    Dettagli immobile

    Codice
    ORM-622
    Tipo
    Uffici
    Contratto
    Locazione
    Zona
    Greater EUR
    Disponibilità
    Immediata
    Superficie totale
    3.390 m²
    Classe energetica
    In fase di rilascio

    Ribotta 11 è un edificio per uffici di recente costruzione. Il complesso, articolato in sei piani fuori terra, offre spazi flessibili grazie al layout e alla presenza di pavimenti galleggianti e controsoffitti. Sono disponibili posti auto. Ribotta 11 si trova nel quadrante sud di Roma, all’interno del centro direzionale Europarco. L’immobile è facilmente raggiungibile sia con i mezzi pubblici sia in auto, trovandosi a circa 200 metri da via Cristoforo Colombo, la principale arteria di collegamento tra il centro città e il quartiere EUR.

    Altre informazioni
    Classe Grado A
    Dettaglio superfici
    Nome Uffici
    Ribotta 11 - P3 1.695 m²
    Ribotta 11 - P2 1.695 m²
    Collegamenti
    Bus/Tram Numerose linee di autobus - 1' A piedi
    Mappa

    Immobili simili

    office - Europarco - Uffici - Dils - featured
    Co-working
    Locazione
    O17892

    Europarco

    Roma, via Ribotta 11
    Vai alla scheda
    office - Vittorini 129 - Uffici - Dils - featured
    Locazione
    ORM-110

    Vittorini 129

    Roma, Via Vittorini, 129
    Vai alla scheda
    office - Caterina Troiani 75 - Uffici - Dils - featured
    Locazione
    ORM-209

    Caterina Troiani 75

    Roma, Via Caterina Troiani, 75, 71-75
    Vai alla scheda
    office - Tarantelli 100 - Uffici - Dils - featured
    Locazione
    ORM-237

    Tarantelli 100

    Roma, Piazzale Tarantelli, 100
    Vai alla scheda
    office - 23/31 EUR Center - Uffici - Dils - featured
    Locazione
    ORM-46

    23/31 EUR Center

    EUR
    Roma, Piazzale Luigi Sturzo, 31, 23-31
    Vai alla scheda
    office - Palazzo Sturzo - Uffici - Dils - featured
    Locazione
    ORM-44

    Palazzo Sturzo

    Roma, Piazzale Luigi Sturzo, 15
    Vai alla scheda
    office - Chopin 12 - Uffici - Dils - featured
    Locazione
    ORM-23

    Chopin 12

    Roma, Via Chopin, 12
    Vai alla scheda
    office - Civiltà Romana 7 - Uffici - Dils - featured
    Locazione
    CORM-118

    Civiltà Romana 7

    Roma, Via della Civiltà Romana, 7, Viale della Letteratura 8
    Vai alla scheda
    office - EUR Laurentina - Uffici - Dils - featured
    Co-working
    Locazione
    O17913

    EUR Laurentina

    Roma, viale Gaurico 91/93
    Vai alla scheda
    office - Woliba - Uffici - Dils - featured
    Locazione
    ON-1363

    Woliba

    Roma, Via Laurentina, 449
    Vai alla scheda
    office - Canton 10 - Uffici - Dils - featured
    Locazione
    ORM-279

    Canton 10

    Roma, Via Canton, 10, 10-12-20
    Vai alla scheda
    office - Serafico 200 - Uffici - Dils - featured
    Locazione
    ORM-22

    Serafico 200

    EUR
    Roma, Via del Serafico, 200
    Vai alla scheda
    office - Viola 48 - Uffici - Dils - featured
    Locazione
    ORM-809

    Viola 48

    Roma, Via Cesare Giulio Viola, 48
    Vai alla scheda
    office - Resti 63 - Uffici - Dils - featured
    Locazione
    ORM-3496

    Resti 63

    Roma, Via Giunio Antonio Resti, 63
    Vai alla scheda
    office - Giorgione 59 - Uffici - Dils - featured
    Locazione
    ORM-251

    Giorgione 59

    Roma, Via Giorgione, 59, 59-63
    Vai alla scheda

    Immobili consigliati

    office - Maxima - Amba Aradam 5 - Uffici - Dils - featured
    Vendita
    ORM-1134

    MAXIMA - Via dell'Amba Aradam 5

    San Giovanni, Re di Roma
    Roma, Via dell'Amba Aradam, 5
    Vai alla scheda
    office - Vittorini 129 - Uffici - Dils - featured
    Locazione
    ORM-110

    Vittorini 129

    Roma, Via Vittorini, 129
    Vai alla scheda
    office - Camp 6° - Uffici - Dils - featured
    Locazione - Vendita
    COMI-204

    Camp 6°

    Sesto San Giovanni
    Sesto San Giovanni, Via Franco Sacchetti, 20
    Vai alla scheda
    office - Hybro - Ripamonti 89 - Uffici - Dils - featured
    Locazione
    OMI-3375

    Hybro

    Milano, Via Giuseppe Ripamonti, 89
    Vai alla scheda
    office - Palazzo Missori - Uffici - Dils - featured
    Locazione
    OMI-1598

    Palazzo Missori

    Centro
    Milano, Via Gonzaga, 4
    Vai alla scheda
    office - Thetris - Uffici - Dils - featured
    Locazione
    OMI-3751

    Thetris

    Milano, Via Giovanni Palatucci, 1
    Vai alla scheda
    office - Lamber - Deruta 19 - Uffici - Dils - featured
    Locazione
    COMI-27

    Lamber

    Milano, Via Privata Deruta, 19
    Vai alla scheda
    office - Durini 15 - Uffici - Dils - featured
    Locazione
    OMI-3829

    Durini 15

    Milano, Via Durini, 15
    Vai alla scheda
    office - B7 - Uffici - Dils - featured
    Locazione
    OMI-1267

    B7

    Milano, Via Bernina, 7
    Vai alla scheda
    office - Stairway - Uffici - Dils - featured
    Locazione
    OMI-3731

    Stairway

    Porta Romana, Cadore, Montenero
    Milano, Piazza Trento, 6
    Vai alla scheda
    office - Filzi 25 - Uffici - Dils - featured
    Locazione
    OMI-2026

    Filzi 25

    Milano, Via Fabio Filzi, 25
    Vai alla scheda
    office - Unionezero - Uffici - Dils - featured
    Locazione
    OMI-3699

    Unionezero

    Mid-rise
    Sesto San Giovanni, Via Acciaierie
    Vai alla scheda
    office - Marcona 37 - Uffici - Dils - featured
    Locazione
    OMI-3939

    Marcona 37

    Milano, Via Marcona, 37
    Vai alla scheda
    office - 23/31 EUR Center - Uffici - Dils - featured
    Locazione
    ORM-46

    23/31 EUR Center

    EUR
    Roma, Piazzale Luigi Sturzo, 31, 23-31
    Vai alla scheda
    office - Woliba - Uffici - Dils - featured
    Locazione
    ON-1363

    Woliba

    Roma, Via Laurentina, 449
    Vai alla scheda
    office - Light Building - Uffici - Dils - featured
    Locazione
    OMI-77

    Light Building

    Milano, Via Scarsellini, 14
    Vai alla scheda
    office - Bassi Business Park - Uffici - Dils - featured
    Locazione
    COMI-22

    Bassi Business Park

    Milano, Via Ugo Bassi, 2
    Vai alla scheda
    office - Palazzo Sturzo - Uffici - Dils - featured
    Locazione
    ORM-44

    Palazzo Sturzo

    Roma, Piazzale Luigi Sturzo, 15
    Vai alla scheda
    office - Bissolati - Umbria 2 - Uffici - Dils - featured
    Locazione
    ORM-500

    Bissolati - Umbria 2

    Roma, Via Umbria 2
    Vai alla scheda
    office - Boncompagni - Uffici - Dils - featured
    Locazione
    ORM-249

    Boncompagni's - Via Boncompagni 71

    Ludovisi, Sallustiano
    Roma, Via Boncompagni, 71, 71/A
    Vai alla scheda
    office - C90 - Uffici - Dils - featured
    Locazione
    ORM-1162

    C90

    Roma, Via Cristoforo Colombo, 90
    Vai alla scheda
    office - Ivory - Zavattari 12 - Uffici - Dils - featured
    Locazione
    OMI-3110

    Ivory

    Milano, Piazzale Fratelli Zavattari, 12
    Vai alla scheda
    office - Pisani 25-27 - Uffici - Dils - featured
    Locazione
    OMI-2326

    Pisani 25-27

    Milano, Via Vittor Pisani, 25
    Vai alla scheda
    office - Centro Leoni - Uffici - Dils - featured
    Locazione
    OMI-3806

    Centro Leoni

    Edificio B
    Milano, Via Giovanni Spadolini, 5
    Vai alla scheda
    office - Linate Airport District - Uffici - Dils - featured
    Locazione
    OMI-3797

    Linate Airport District

    Segrate, Viale Enrico Forlanini, 1
    Vai alla scheda
    office - Europa 18 - Uffici - Dils - featured
    Locazione
    OMI-1834

    Europa 18

    Milano, Corso Europa, 18
    Vai alla scheda
    office - Palazzo Pellico - Via Silvio Pellico 10 - Uffici - Dils - featured
    Locazione
    OMI-1756

    Palazzo Pellico

    Milano, Via Silvio Pellico, 12
    Vai alla scheda

    Ribotta 11

    Roma, Viale Giorgio Ribotta, 9

    office - Ribotta 11 - Uffici - Dils - gallery thumbnail - 1
    office - Ribotta 11 - Uffici - Dils - gallery thumbnail - 2
    office - Ribotta 11 - Uffici - Dils - gallery thumbnail - 3
    office - Ribotta 11 - Uffici - Dils - gallery - 1
    office - Ribotta 11 - Uffici - Dils - gallery - 2
    office - Ribotta 11 - Uffici - Dils - gallery - 3
    office - Ribotta 11 - Uffici - Dils - Planimetria thumbnail - 1
    office - Ribotta 11 - Uffici - Dils - Planimetria thumbnail - 2
    office - Ribotta 11 - Uffici - Dils - Planimetria thumbnail - 3
    office - Ribotta 11 - Uffici - Dils - Planimetria - 1
    office - Ribotta 11 - Uffici - Dils - Planimetria - 2
    office - Ribotta 11 - Uffici - Dils - Planimetria - 3
    Dils
    Settori
    • Uffici
    • Logistica e Industriale
    • Retail
    • Hospitality
    • Living e Residenziale
    Servizi
    • Utilizzatori
    • Proprietari
    • Investitori
    Immobili
    • Uffici
    • Logistica e Industriale
    • Retail
    • Living e Residenziale
    • Guida ai quartieri di Milano
    Chi siamo
    • Questi siamo noi
    • Il Manifesto Dils
    • Il Dils Club
    • News e Ricerche
    • Give Back
    • This is my Milano
    • Lavora con noi
    • Contatti
    Seguici
    Dils Copyright © 2026 P.IVA 07575790154 - Privacy | Cookies | Cookie Preferences | Organismo di Vigilanza | Whistleblowing | Accessibility