Choose your country to see local content
IT Dils Italy NL Dils Nederlands PT_PT Dils Portugal ES Dils Spain ES Dils Lucas Fox FR Eol - A Dils Company
Visit
Dils
Dils Dils
  • Settori
    UfficiLogistica e IndustrialeRetailHospitalityLiving e Residenziale
  • Servizi
    UtilizzatoriProprietariInvestitori
  • Immobili
    UfficiLogistica e IndustrialeRetailLiving e ResidenzialeGuida ai quartieri di Milano
  • News
  • Chi siamo
    Questi siamo noiIl Manifesto DilsInternationalIl Dils ClubRebrandingLavora con noi
  • Innovation
  • Dils Cares
    Give BackThis is my MilanoPorta RomanaLambrateIsolaMaggiolinaTicineseScalo di Porta RomanaNews
  • Contatti
0
Language
EN Inglese IT Italiano
International
IT Dils Italy NL Dils Nederlands PT_PT Dils Portugal ES Dils Spain ES Dils Lucas Fox FR Eol - A Dils Company
  • IT
    EN IT
|
Dils Italy IT Dils Nederlands NL Dils Portugal PT_PT Dils Spain ES Dils Lucas Fox ES Eol - A Dils Company FR
Redilco Sigest Redilco Sigest
Redilco Sigest
Trova il tuo immobile

Brescia Nord

Brescia, Via Bainsizza

Chiamaci

+39 02 80 29 21

Scrivici

logistics@dils.com

Per maggiori informazioni, compila il form e ti contatteremo noi.

    Leggi l'informativa sull'utilizzo di agenti virtuali.

    Riceverai una telefonata gratuita dal numero verde: 800 931 408. Per una migliore esperienza, consigliamo di rispondere in un ambiente silenzioso, senza rumori di fondo e di non usare il vivavoce. La chiamata sarà registrata e archiviata per un massimo di 15 giorni, e i relativi dati saranno trattati esclusivamente per supportarla nella sua ricerca immobiliare e monitorare la qualità del servizio, in conformità all'informativa privacy che può trovare sul nostro sito web nella sezione "Privacy".

    logistics - Brescia Nord - Logistica - Dils - gallery - 1
    logistics - Brescia Nord - Logistica - Dils - gallery - 2
    logistics - Brescia Nord - Logistica - Dils - gallery - 3
    logistics - Brescia Nord - Logistica - Dils - gallery - 4
    logistics - Brescia Nord - Logistica - Dils - gallery - 5
    logistics - Brescia Nord - Logistica - Dils - gallery - 6
    logistics - Brescia Nord - Logistica - Dils - gallery - 7
    logistics - Brescia Nord - Logistica - Dils - gallery - 8
    logistics - Brescia Nord - Logistica - Dils - gallery - 9
    logistics - Brescia Nord - Logistica - Dils - gallery - 10
    logistics - Brescia Nord - Logistica - Dils - gallery - 11
    logistics - Brescia Nord - Logistica - Dils - gallery - 12
    logistics - Brescia Nord - Logistica - Dils - gallery - 13
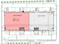
    logistics - Brescia Nord - Logistica - Dils - Planimetria - 1
    logistics - Brescia Nord - Logistica - Dils - Planimetria - 2
    1 / 15
    Planim. Mappa
    logistics - Brescia Nord - Logistica - Dils - gallery thumbnail - 1
    logistics - Brescia Nord - Logistica - Dils - gallery thumbnail - 2
    logistics - Brescia Nord - Logistica - Dils - gallery thumbnail - 3
    logistics - Brescia Nord - Logistica - Dils - gallery thumbnail - 4
    logistics - Brescia Nord - Logistica - Dils - gallery thumbnail - 5
    logistics - Brescia Nord - Logistica - Dils - gallery thumbnail - 6
    logistics - Brescia Nord - Logistica - Dils - gallery thumbnail - 7
    logistics - Brescia Nord - Logistica - Dils - gallery thumbnail - 8
    logistics - Brescia Nord - Logistica - Dils - gallery thumbnail - 9
    logistics - Brescia Nord - Logistica - Dils - gallery thumbnail - 10
    logistics - Brescia Nord - Logistica - Dils - gallery thumbnail - 11
    logistics - Brescia Nord - Logistica - Dils - gallery thumbnail - 12
    logistics - Brescia Nord - Logistica - Dils - gallery thumbnail - 13
    logistics - Brescia Nord - Logistica - Dils - Planimetria thumbnail - 1
    logistics - Brescia Nord - Logistica - Dils - Planimetria thumbnail - 2

    Dettagli immobile

    Codice
    LBS-104
    Tipo
    Logistica
    Contratto
    Locazione
    Zona
    A4 - Bergamo - Brescia
    Disponibilità
    Immediata
    Superficie totale
    7.175 m²
    Classe energetica
    In fase di rilascio

    In area strategica lungo il corridoio A4 – Bergamo – Brescia, a pochi chilometri dall’autostrada, è disponibile un comparto logistico di circa 7.000 mq all’interno di un moderno complesso last-mile.

    L’immobile, progettato secondo i più recenti standard del settore, offre spazi funzionali con altezza sottotrave di 12 metri, baie di carico dedicate e area di manovra ampia. Le caratteristiche costruttive e impiantistiche – tra cui sistema antincendio avanzato e layout predisposto per operazioni di cross-docking – garantiscono efficienza e sicurezza.

    La posizione, facilmente accessibile sia dall’Autostrada A4 (5 km) sia dall’A35 (17 km), lo rende una soluzione ideale per operatori logistici e corrieri last-mile nell’area metropolitana di Brescia.

    Tags: REI 120, Park, Sprinkler, Cross-docking, H > 10 m, Corriere last-mile, Nuova costruzione, Stand-alone
    Altre informazioni
    Tipologia last-mile
    Superficie fondiaria 32.000 m²
    Superficie coperta 14.334 m²
    Altezza utile sotto-trave 12,00 m
    Sistema Sprinkler NFPA ESFR
    Baie di carico 24
    Doppio fronte ribalta Si
    Maglia strutturale 19.00x18.00
    Struttura REI 120
    Portata pavimento 5 t/m²
    Profondità piazzale 35 m
    Parco logistico Si
    Dettaglio superfici
    Nome Magazzini Mezzanino Uffici
    1 5.995 m² 986 m² 194 m²
    Collegamenti
    Autostrade A4 - 5 km In macchina, A35 - 17 km In macchina
    Mappa

    Immobili simili

    logistics - Brescia Ovest - Logistica - Dils - featured
    Vendita - Locazione
    L22831

    Brescia Ovest

    Torbole
    Torbole, via Industria
    Vai alla scheda
    logistics - Bergamo Sud-Ovest - Logistica - Dils - featured
    Locazione
    LBG-3765

    Bergamo Sud-Ovest

    Stezzano, Via Boito
    Vai alla scheda
    logistics - Cremona - Logistica - Dils - featured
    Locazione
    LCR-1146

    Cremona

    Cremona, SS 10 Padana Inferiore
    Vai alla scheda
    logistics - Bergamo Sud-Ovest - Logistica - Dils - featured
    Locazione
    LBG-1299

    Bergamo Sud-Ovest

    Axipark
    Osio Sotto, Via Caduti del Lavoro
    Vai alla scheda
    logistics - Milano Est - Logistica - Dils - featured
    Locazione
    LMI-1061

    Milano Est

    Trezzo sull'Adda, Via Giuseppe Mazzini, 58, 20056 Trezzo sull'Adda MI, Italy
    Vai alla scheda
    logistics - Cremona Nord-Ovest - Logistica - Dils - featured
    Locazione
    LCR-1296

    Cremona Nord-Ovest

    Dovera, Via Umberto I
    Vai alla scheda
    logistics - Verona Sud - Logistica - Dils - featured
    Locazione
    LVR-3782

    Verona Sud

    Mozzecane, Via Mediana
    Vai alla scheda
    logistics - Monza Est - Logistica - Dils - featured
    Locazione
    LMB-975

    Monza Est

    Roncello, Via Leonardo da Vinci
    Vai alla scheda
    logistics - Verona Sud - Logistica - Dils - featured
    Locazione
    LVR-3781

    Verona Sud

    Nogarole Rocca
    Nogarole Rocca, Via Alterio Spinelli
    Vai alla scheda
    logistics - Verona Sud - Logistica - Dils - featured
    Locazione
    LVR-3780

    Verona Sud

    Nogarole Rocca, Via Santa Chiara
    Vai alla scheda
    logistics - Verona Logistics Park - Logistica - Dils - featured
    Locazione
    CLVR-119

    Verona Logistics Park

    Verona, Via Chioda
    Vai alla scheda
    logistics - Piacenza Est - Logistica - Dils - featured
    Locazione
    LPC-1050

    Piacenza Est

    Caorso, Via Rotta, 11
    Vai alla scheda
    logistics - Lodi Sud-Est - Logistica - Dils - featured
    Locazione
    LLO-3776

    Lodi Sud-Est

    Fombio, Viale dell'Industria, 37
    Vai alla scheda
    logistics - Verona Sud - Logistica - Dils - featured
    Locazione
    CLVR-47

    Verona Sud

    Vigasio
    Vigasio, Via Carbonara
    Vai alla scheda
    logistics - Lodi Sud - Logistica - Dils - featured
    Locazione
    L69379

    Lodi Sud

    Livraga
    Livraga, Via delle Industrie
    Vai alla scheda

    Immobili consigliati

    logistics - Le Betulle Logistics Hub - Logistica - Dils - featured
    Locazione
    CLBO-49

    Le Betulle Logistics Hub

    Castel Guelfo di Bologna
    Castel Guelfo di Bologna, Via Brina, 20, 40023 Castel Guelfo di Bologna BO, Italy
    Vai alla scheda
    logistics - Polo Logistico Piacenza - Logistica - Dils - featured
    Locazione
    CLPC-34

    Polo Logistico Piacenza

    Piacenza, Via Francesco Bazzani
    Vai alla scheda
    logistics - Rovigo Ovest - Logistica - Dils - featured
    Locazione
    LRO-1188

    Rovigo Ovest

    Castelguglielmo, Castelguglielmo
    Vai alla scheda
    logistics - Torino Warehouse - Logistica - Dils - featured
    Locazione
    LTO-64

    Torino Warehouse

    Torino, Strada Vicinale delle Cascinette
    Vai alla scheda
    logistics - Torino Nord Est - Logistica - Dils - featured
    Locazione
    LTO-9789

    Torrazza Piemonte Logistics Park

    Torrazza Piemonte
    Torrazza Piemonte, Strada Provinciale 90
    Vai alla scheda
    logistics - Tortona Green Logistics - Logistica - Dils - featured
    Locazione
    LAL-94

    Tortona Green Logistics

    Tortona, Str. Com. Cabannoni, 13-350, 15057 Tortona AL, Italy
    Vai alla scheda
    logistics - Logistics Park Tivoli Terme - Logistica - Dils - featured
    Locazione
    LRM-1210

    East Core - Tivoli Logistics Hub

    Tivoli, Via Cesurni, 12, 00019 Tivoli RM, Italy
    Vai alla scheda
    logistics - CostiHub - Logistica - Dils - featured
    Locazione
    LRM-106

    Roma - Via Raffaele Costi

    Roma
    Roma, Via Raffaele Costi 90, 90.0
    Vai alla scheda
    logistics - Brugherio Logistics Centre - Logistica - Dils - featured
    Locazione
    LMB-121

    Brugherio Logistics Centre

    Brugherio, Via Bindellera, 20861 Brugherio MB, Italy
    Vai alla scheda
    logistics - Bologna Interporto - Logistica - Dils - featured
    Locazione
    LBO-3797

    Bologna Interporto

    Building 9.8
    Bentivoglio, Via Santa Maria in Duno Interporto Bologna
    Vai alla scheda
    logistics - Osmannoro Logistics Park - Logistica - Dils - featured
    Locazione
    CLFI-56

    Osmannoro Logistics Park

    Sesto Fiorentino, R555+9W Sesto Fiorentino
    Vai alla scheda
    logistics - Venice Logistics Park - Logistica - Dils - featured
    Locazione
    CLVE-45

    Venice Logistics Park

    Venezia
    Venezia, Via Pialoi, 42B, 30173 Venezia VE, Italy
    Vai alla scheda
    logistics - Roma Sud - Logistica - Dils - featured
    Locazione
    LFR-1194

    Roma Sud

    Anagni, Via Capannaccio - Zona Industriale Paduni
    Vai alla scheda
    logistics - Bitonto Logistics Park - Logistica - Dils - featured
    Locazione
    LN-562

    Bitonto Logistics Park

    Bitonto, Strada Provinciale 231
    Vai alla scheda
    logistics - Cremona Nord-Ovest - Logistica - Dils - featured
    Locazione
    LCR-1296

    Cremona Nord-Ovest

    Dovera, Via Umberto I
    Vai alla scheda
    logistics - Cremona - Logistica - Dils - featured
    Locazione
    LCR-1146

    Cremona

    Cremona, SS 10 Padana Inferiore
    Vai alla scheda
    logistics - Bologna Interporto DC17 - Logistica - Dils - featured
    Locazione
    LBO-1168

    Bologna Interporto DC17

    Bentivoglio, Vicolo Cimitero, 4
    Vai alla scheda
    logistics - Bergamo Sud-Ovest - Logistica - Dils - featured
    Locazione
    LBG-1299

    Bergamo Sud-Ovest

    Axipark
    Osio Sotto, Via Caduti del Lavoro
    Vai alla scheda
    logistics - Verona Sud - Logistica - Dils - featured
    Locazione
    LVR-3781

    Verona Sud

    Nogarole Rocca
    Nogarole Rocca, Via Alterio Spinelli
    Vai alla scheda
    logistics - Torrevecchia Pia Green Logistics Park - Logistica - Dils - featured
    Locazione
    LPV-3771

    Torrevecchia Pia Green Logistics Park

    Torrevecchia Pia, 78H4+5V Torrevecchia Pia
    Vai alla scheda
    logistics - Roma Est - Logistica - Dils - featured
    Locazione
    LRM-1121

    Roma Est

    Roma, Via di Salone 131
    Vai alla scheda
    logistics - Passo Corese Warehouse - Logistica - Dils - featured
    Locazione
    LRI-1167

    Passo Corese Warehouse

    Lotto 4
    Fara in Sabina, Viale Europa - Zona Industriale di Passo Corese
    Vai alla scheda
    logistics - Fidenza - Logistica - Dils - featured
    Locazione
    LPR-9810

    Fidenza Logistics Park

    Fidenza
    Fidenza, Strada senza nome, 43036 Fidenza PR, Italy
    Vai alla scheda
    logistics - Milano Nord - Logistica - Dils - featured
    Locazione
    LMI-3752

    Milano Nord

    Novate Milanese, Via Fratelli Beltrami
    Vai alla scheda
    logistics - Milano Ovest - Logistica - Dils - featured
    Locazione
    LMI-3764

    Milano Ovest

    Robecchetto con Induno, Via S. Maurizio, 47
    Vai alla scheda
    logistics - Milano Est - Logistica - Dils - featured
    Locazione
    LMI-1047

    Milano Est

    Milano, Via Gaudenzio Fantoli, 6/3, 20138 Milano MI, Italy
    Vai alla scheda
    logistics - Agliana Logistics Park - Logistica - Dils - featured
    Locazione
    CLPT-69

    Agliana Logistics Park

    Agliana, WX3V+F5 Agliana
    Vai alla scheda
    logistics - Tortona Logistics Hub - Logistica - Dils - featured
    Locazione
    LAL-1186

    Tortona Logistics Hub

    Tortona, Str. Vicinale Gerola, 5, 15057 Cascina Gerola AL, Italy
    Vai alla scheda
    logistics - Verona Logistics Park - Logistica - Dils - featured
    Locazione
    CLVR-119

    Verona Logistics Park

    Verona, Via Chioda
    Vai alla scheda
    logistics - Latius Logistics Park - Logistica - Dils - featured
    Locazione
    CLFR-70

    Latius Logistics Park

    Frosinone, Via Selvotta, 19, 03100 Frosinone FR, Italy
    Vai alla scheda

    Brescia Nord

    Brescia, Via Bainsizza

    logistics - Brescia Nord - Logistica - Dils - gallery thumbnail - 1
    logistics - Brescia Nord - Logistica - Dils - gallery thumbnail - 2
    logistics - Brescia Nord - Logistica - Dils - gallery thumbnail - 3
    logistics - Brescia Nord - Logistica - Dils - gallery thumbnail - 4
    logistics - Brescia Nord - Logistica - Dils - gallery thumbnail - 5
    logistics - Brescia Nord - Logistica - Dils - gallery thumbnail - 6
    logistics - Brescia Nord - Logistica - Dils - gallery thumbnail - 7
    logistics - Brescia Nord - Logistica - Dils - gallery thumbnail - 8
    logistics - Brescia Nord - Logistica - Dils - gallery thumbnail - 9
    logistics - Brescia Nord - Logistica - Dils - gallery thumbnail - 10
    logistics - Brescia Nord - Logistica - Dils - gallery thumbnail - 11
    logistics - Brescia Nord - Logistica - Dils - gallery thumbnail - 12
    logistics - Brescia Nord - Logistica - Dils - gallery thumbnail - 13
    logistics - Brescia Nord - Logistica - Dils - gallery - 1
    logistics - Brescia Nord - Logistica - Dils - gallery - 2
    logistics - Brescia Nord - Logistica - Dils - gallery - 3
    logistics - Brescia Nord - Logistica - Dils - gallery - 4
    logistics - Brescia Nord - Logistica - Dils - gallery - 5
    logistics - Brescia Nord - Logistica - Dils - gallery - 6
    logistics - Brescia Nord - Logistica - Dils - gallery - 7
    logistics - Brescia Nord - Logistica - Dils - gallery - 8
    logistics - Brescia Nord - Logistica - Dils - gallery - 9
    logistics - Brescia Nord - Logistica - Dils - gallery - 10
    logistics - Brescia Nord - Logistica - Dils - gallery - 11
    logistics - Brescia Nord - Logistica - Dils - gallery - 12
    logistics - Brescia Nord - Logistica - Dils - gallery - 13
    logistics - Brescia Nord - Logistica - Dils - Planimetria thumbnail - 1
    logistics - Brescia Nord - Logistica - Dils - Planimetria thumbnail - 2
    logistics - Brescia Nord - Logistica - Dils - Planimetria - 1
    logistics - Brescia Nord - Logistica - Dils - Planimetria - 2
    Dils
    Settori
    • Uffici
    • Logistica e Industriale
    • Retail
    • Hospitality
    • Living e Residenziale
    Servizi
    • Utilizzatori
    • Proprietari
    • Investitori
    Immobili
    • Uffici
    • Logistica e Industriale
    • Retail
    • Living e Residenziale
    • Guida ai quartieri di Milano
    Chi siamo
    • Questi siamo noi
    • Il Manifesto Dils
    • Il Dils Club
    • News e Ricerche
    • Give Back
    • This is my Milano
    • Lavora con noi
    • Contatti
    Seguici
    Dils Copyright © 2026 P.IVA 07575790154 - Privacy | Cookies | Cookie Preferences | Organismo di Vigilanza | Whistleblowing | Accessibility